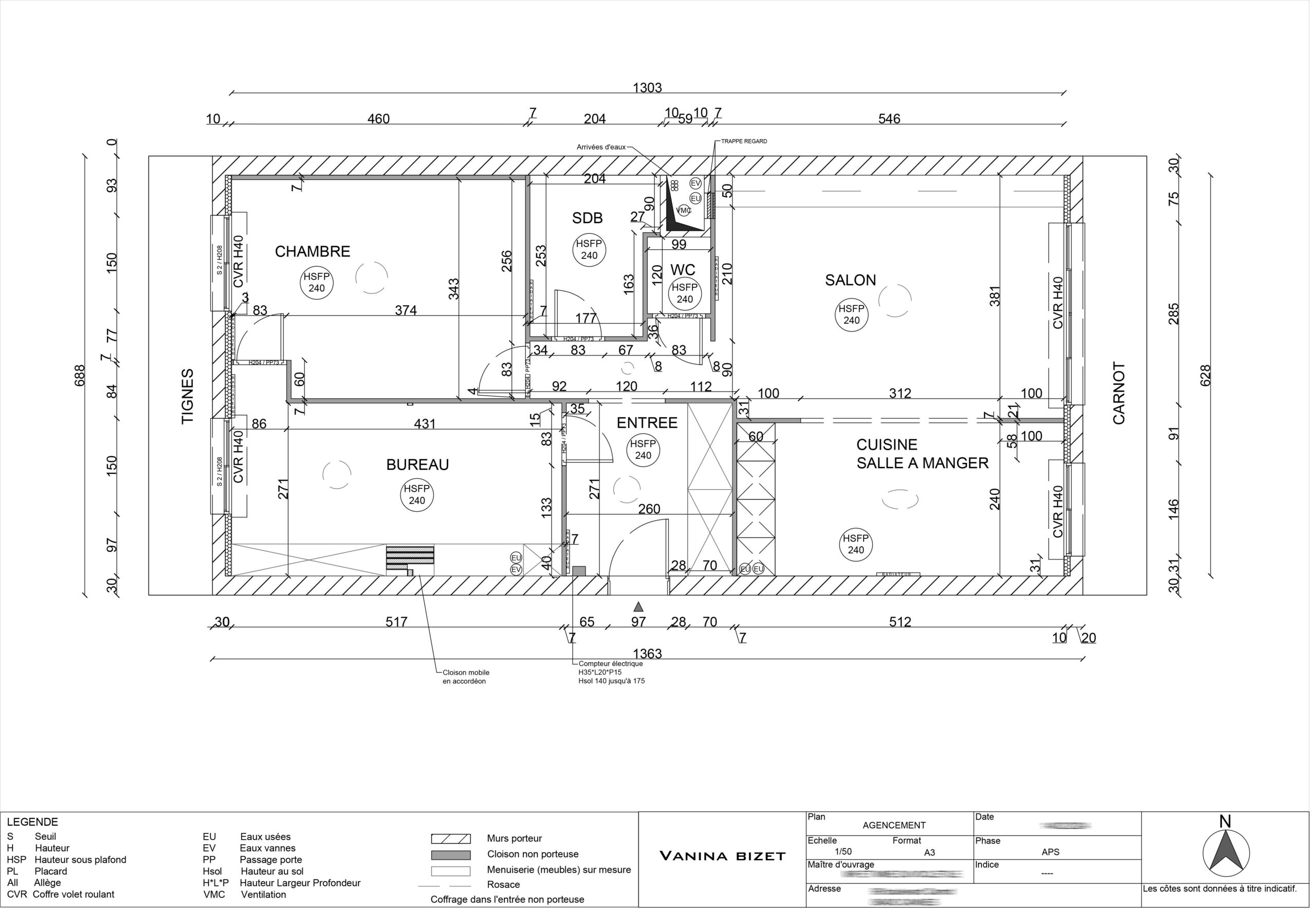
Appartement 80 m² – Cannes

  • Prestation sur mesure :

    Pour ce bien situé à Cannes la demande des clients était de leur fournir uniquement les plans techniques, les visualisations 3D et les planches d’ambiance. Ils souhaitaient s’occuper eux-mêmes de la réalisation des travaux.

     

  • Souhait des clients :

    Une entrée bien distincte avec beaucoup de rangement. Un grand espace de vie pour pouvoir recevoir régulièrement. Une Cuisine, petite, mais très fonctionnel. Une très grande bibliothèque, qui cache la télévision. Un grand bureau avec beaucoup de rangement pour la propriétaire qui travaille chez elle. Une chambre assez spacieuse pour pratiquer le yoga quotidiennement.
    Une décoration baroque sobre.